




セブンイレブン(逗子小学校前店)

HAC(逗子葉山駅前店)

京浜急行逗子・葉山駅

逗子図書館

逗子小学校
| 物件タイトル | 店舗付新築アパート | ||
|---|---|---|---|
| 所在地 | 逗子市逗子4丁目3-19 | ||
| 交通 | 京急逗子線「逗子・葉山」駅徒歩5分 JR横須賀線「逗子」駅徒歩8分 |
||
| 物件種別 | 新築一戸建て | 取引態様 | 媒介 |
| 価格 | ご成約済 | 間取り | |
| 築年月 | 2026年1月予定 | 建物構造 | 木造3階建 |
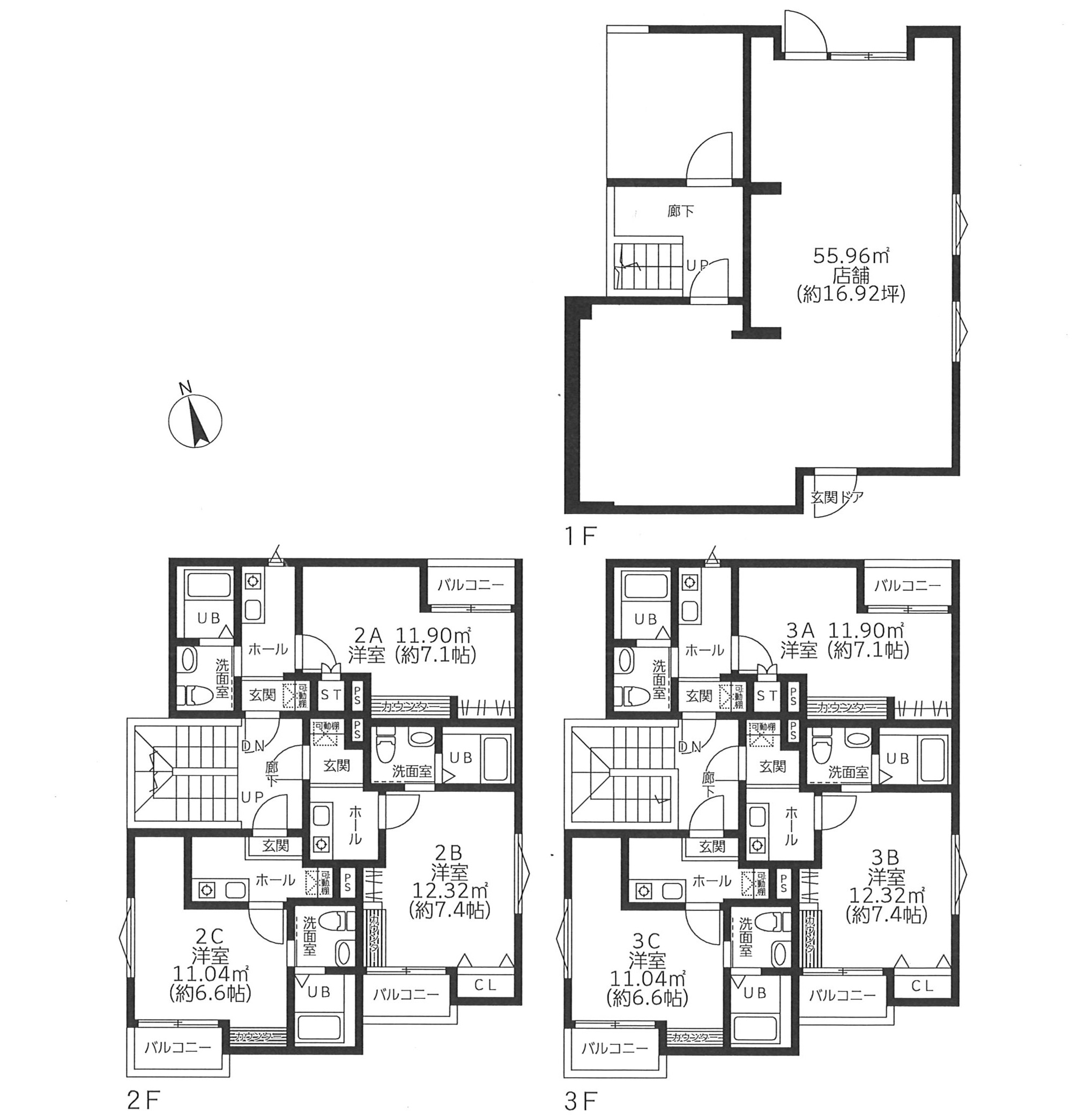
| 土地面積 | 107.90m² | 建物面積 | 211.82m² |
| 土地権利 | 所有権 | 地目 | 宅地 |
| 建ぺい率 | 80% | 容積率 | 200% |
| 用途地域 | 近隣商業 | 駐車場 | |
| 現況 | 建築中 | 引渡し時期 | 相談 |
| 小学校学区 | 逗子小学校 | 中学校学区 | 逗子中学校 |
| 建築確認番号 | 物件番号 | ||
| 備考 | 1階 店舗 2階 1K ×3部屋 3階 1K ×3部屋 住宅性能評価取得 ・耐震等級3 ・耐風等級2 ・劣化対策等級3 ・断熱性能等級6 ・一次エネルギー消費量等級6 住宅部分 専有部分 A室 約21.5u(6.5坪) B室 約21.78u(6.5坪) C室 約19.94u(6.0坪) |
||
| お勧めポイント | |
| 通学 | |
| お買い物 | |
| その他 |

Copyright(C) 逗子葉山物件.com All Right Reserved.